


Il lotto 3 è composto da 4 villette con accesso indipendente e giardino privato.
La villetta “M” ha un ampio giardino che la circonda su tre lati, l’affaccio sulla proprietà privata garantisce un’ottima privacy e uno spazio esclusivo da godersi durante l’estate.
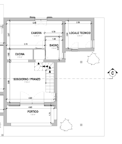
Si sviluppa su due livelli così suddivisi.
Al piano terra si trova un soggiorno con angolo cottura da cui si accede al portico di 8 mq, perfetto per godersi lo spazio all’aperto anche nelle giornate meno belle.
Un disimpegno separa la zona notte, garantendo privacy e tranquillità a tutti gli abitanti.
La camera matrimoniale è molto silenziosa.
Il bagno ha la cabina doccia.
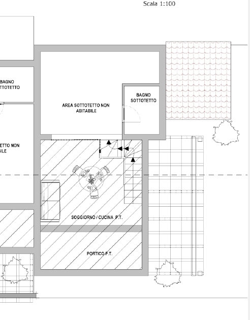
La scala interna collega l’appartamento a un ampio locale sottotetto di 20 mq con bagno
Un locale tecnico di circa 7 mq, con accesso dal giardino, è perfetto per riporre tutti gli arredi del giardino nel periodo in cui non possono essere utilizzati.
I materiali utilizzati nella costruzione saranno di ultima gnerazione, in modo da garantire il massimo del comfort e del risparmio energetico.
Superficie lorda abitazione mq 46
Superficie portico mq 8
Superficie sottotetto mq 20
Superficie locale tecnico mq 7
Prezzo richiesto € 240.000

Per fissare una visita contatta:
Geom. Roberto Spalti
Telefono 3286876090
mail in**@***************ti.it
Lascia un commento